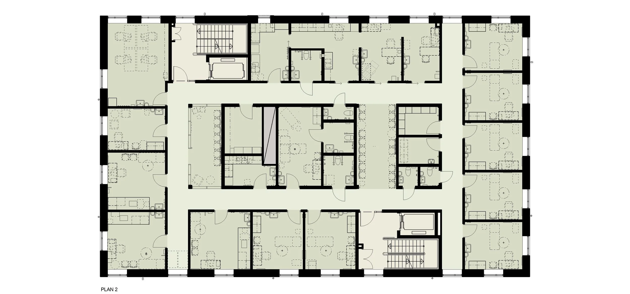
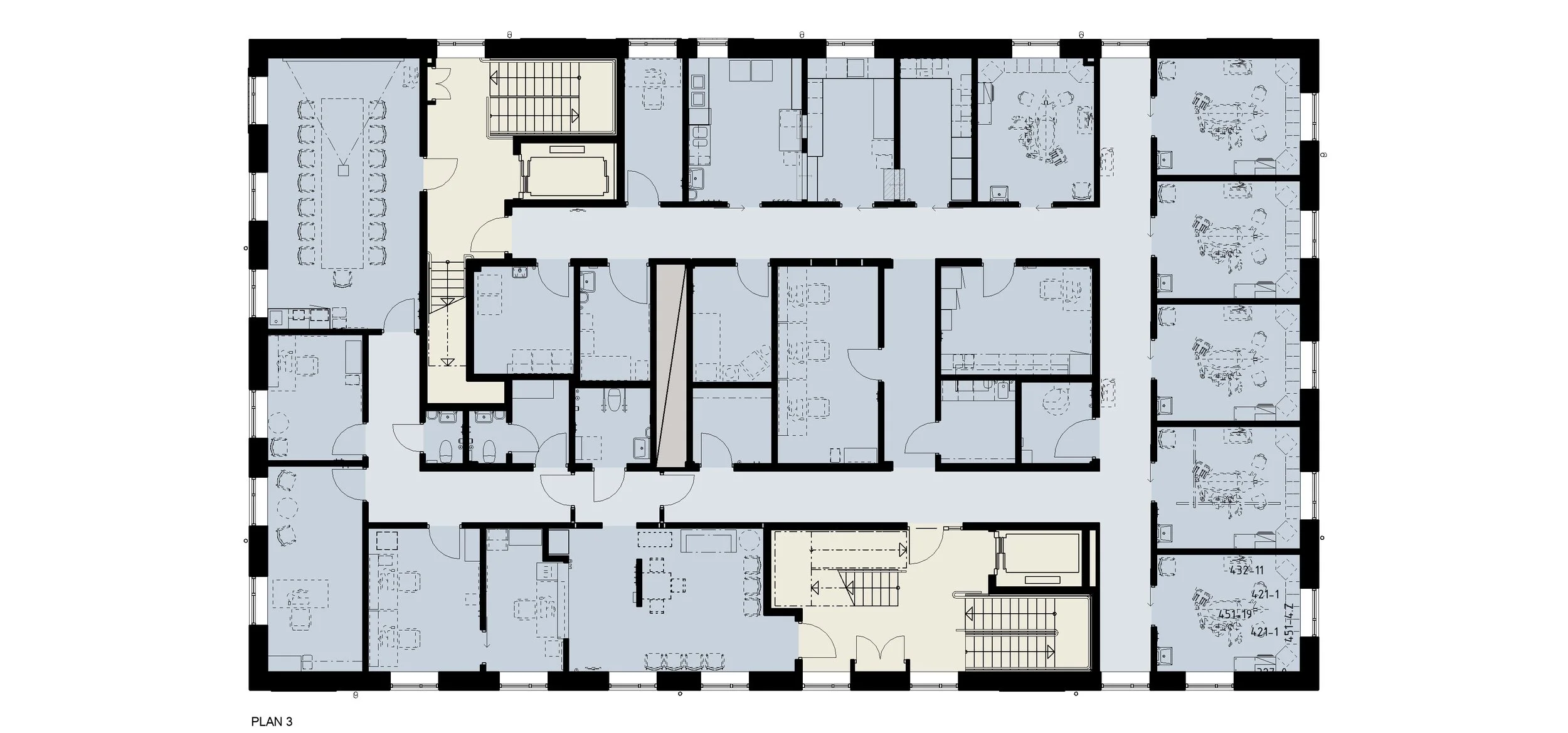
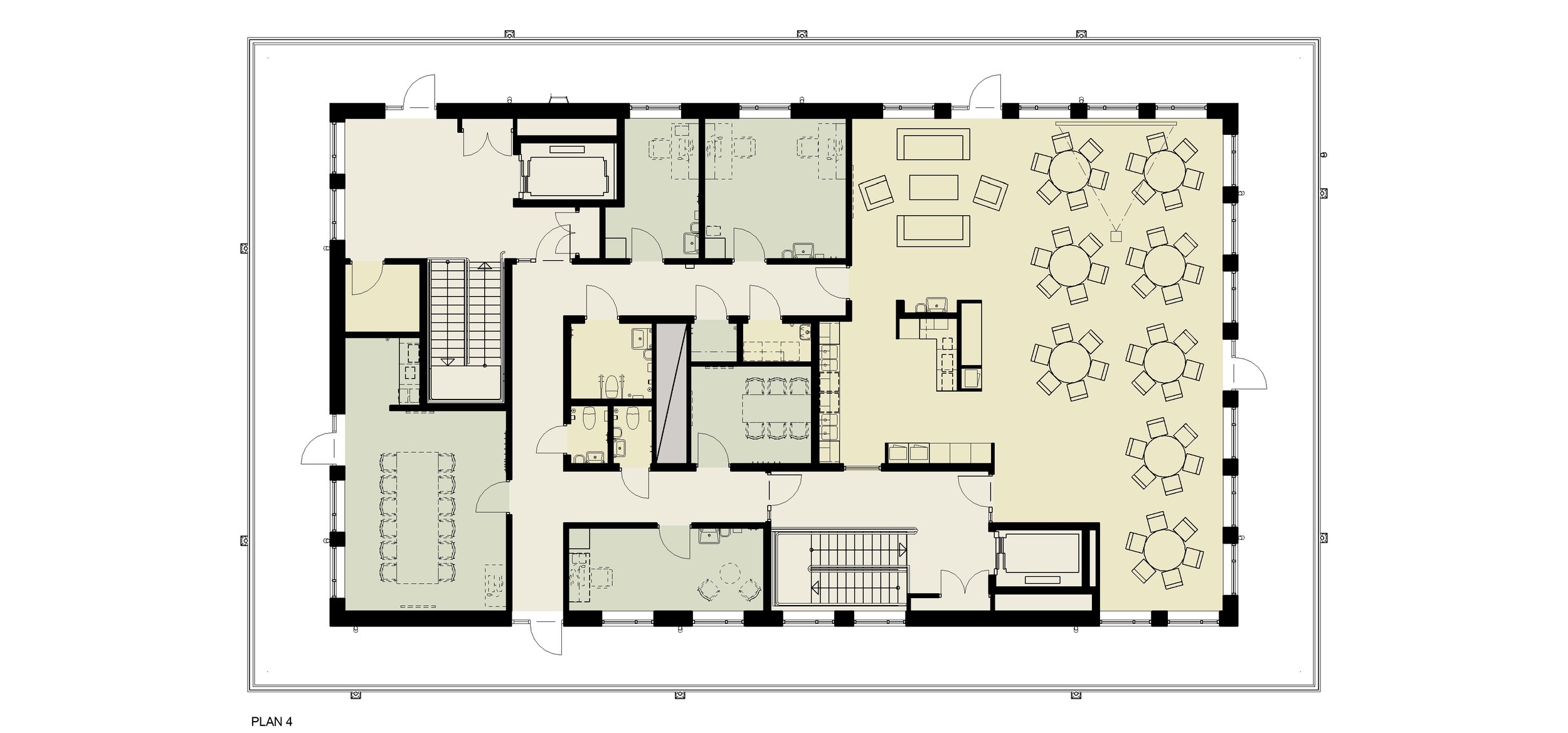
Alunda Vårdcentral och Folktandvård

PROJEKT Alunda Vårdcentral och Folktandvård, Östhammar
ARKITEKTER Jan Fidjeland, Anja Knudsen, Peter Emilson, Anna Heimbürger
BESTÄLLARE Östhammarshem
SKEDE Detaljplaneunderlag, Programhandling, Bygglovshandling, Förfrågningshandling
BYGGÅR 2026
OMFATTNING 2700 m²

Nästa
Nästa

Albrektsgatan - Ombyggnad bostäder